欢迎来到安平县秉德丝网制品有限公司网站!

S46长兴至高淳高速公路皖浙省界至郎溪西枢纽段防落物网生产厂家
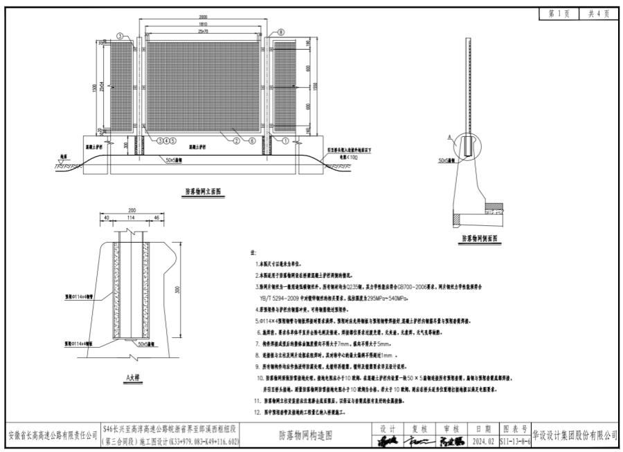
1.本图尺寸以毫米为单位。
2.本图适用于防落物网设在桥梁混凝土护栏两侧的情况。
3.除网片钢丝为一般用途低碳钢丝外,所有钢材均为Q235钢,其力学性能应符合GB700-2006要求,网片钢丝力学性能须符合YB/T 5294-2009 中对镀锌钢丝的相关要求,抗拉强度为295MPa~540MPa。
4.若预埋件与护栏内钢筋冲突,可将钢筋绕过预埋件。
5.φ114*4预埋钢管与钢板焊接时要求满焊,预埋时应先将钢板与预埋钢管焊接好,混凝土护栏内钢筋尽量与预埋套筒焊接。
6.施焊前,要求各单体平直并去除毛刺及锈迹,焊接部位要求过渡光滑,无夹渣,无虚焊,无气孔等缺陷。
7.构件焊接成型后的整体曲翘度横向不得大于7mm,纵向不得大于5mm。
8.连接板与立柱及网片边框在组焊时,其对称中心的偏斜不得超过1mm 。
9.所有构件均应作热浸锌防腐处理,先镀锌再镀塑,镀锌及要求详见设计说明。
10.防落物网须做防雷接地处理,接地电阻应小于10 欧。在混凝土护栏内设置一块50X5扁钢连接所有预埋套筒,扁钢与预埋套筒底部焊接,并引至桥头接地。测量防落物网防雷接地电阻小于10欧姆为合格,若大于10欧姆,则应在桥头适当位置增打接地极以满足电阻要求。
11.防落物网立柱安装前应注意磨去底面塑层,以保证与套筒底板有良好的金属接触。
12.图中预埋套管及接地的工程量已纳入桥梁施工。