欢迎来到安平县秉德丝网制品有限公司网站!

广西百色高速公路电焊网隔离栅专业生产厂家
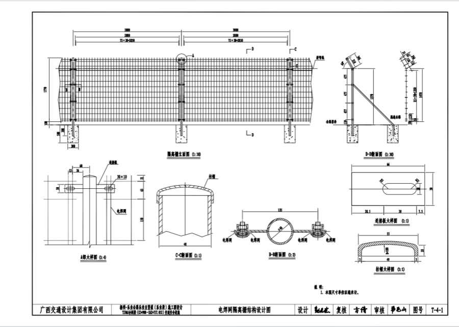
1.电焊网单片2880x181 6,其拐角部分应一次折弯形成。
2.砼基础采用预制,在网架结构就位调顺后,其预留孔应用M10水泥砂浆封填严密。
3.电焊网用φ4mm的低碳钢丝制造,并应符合《一般用途低碳钢丝》 (YB/T 5294-2009)的规定。
4.隔离栅每隔30m间距设置一个斜撑。
5.斜撑与抱箍应首先焊接成整体,然后采用下述防腐方法进行防腐处理。
6.立材材料性能应符合《直缝电焊钢管》 (GB/T13793-2016)的规定。
7.施焊前,要求各单体矫正平直并去毛刺及锈迹。
8.焊接部位要求过渡圆滑,无焊渣,虚焊,气孔等缺陷。
9.电焊网隔离栅采用镀锌后镀塑的防腐形式。第一层热浸镀锌所用的锌应满足《锌锭》(GB/T470-2008)中的规定,镀锌量: 网片为90g/㎡;紧固件、连接件为120g/㎡;立柱、横梁等为270g/㎡。第二层非金属镀层可为聚(氯)乙烯或聚酯,厚度为聚 (氯)乙烯材料:网片0.3mm,其它为0.4mm;聚酯:0.1mm;紧固件连接件也可采用一层热浸镀锌的防腐方法,镀锌量为350g/㎡。
10.镀塑层应满足:(1)均匀光滑、连续、无肉眼可分辨的小孔、空间、孔隙、裂缝、脱皮及其它有害缺陷。 (2) 镀层应附着良好,在人工加速实验后,镀层不允许产生裂缝,破损等损伤现象及褪色。
11.若遇到土质疏松地段,混凝土基础坑要夯实处理后方可安装。