欢迎来到安平县秉德丝网制品有限公司网站!

广东河源密目钢板网隔离栅专业生产厂家
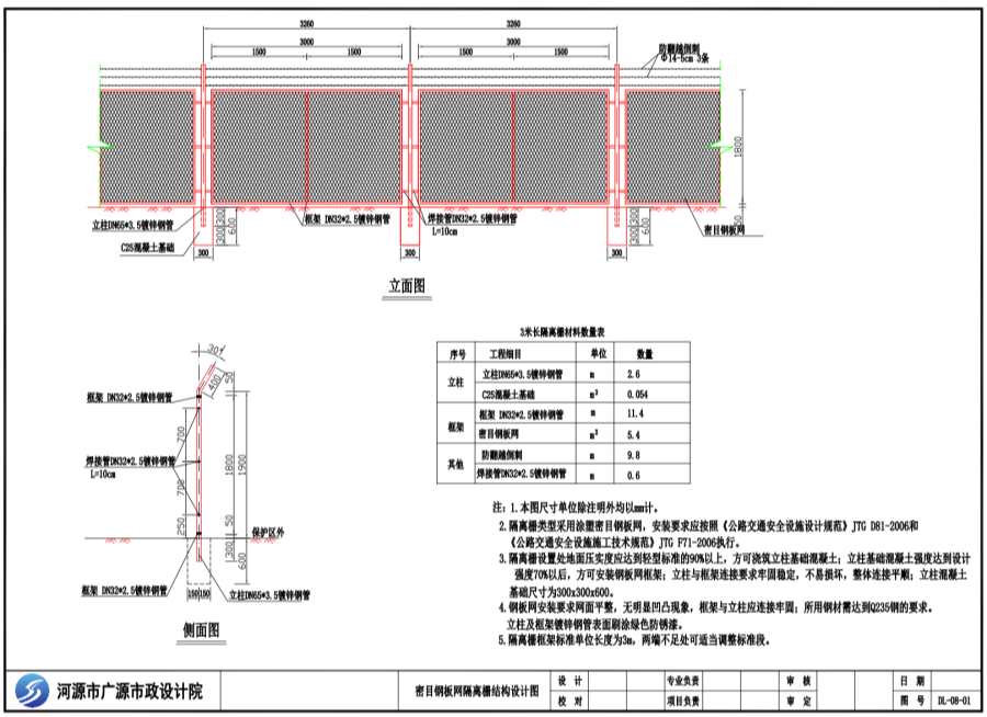
注:1.本图尺寸单位除注明外均以mm计。
2.隔离栅类型采用涂塑密目钢板网,安装要求应按照《公路交通安全设施设计规范》JTG D81-2006和《公路交通安全设施施工术规范》JTG F71-2006执行。
3.隔离栅设置处地面压实度应达到轻型标准的90%以上,方可浇筑立柱基础混凝土;立柱基础混凝土强度达到设计强度70%以后,方可安装钢板网框架;立柱与架连接要求牢固稳定,不易损坏,整体连接平顺:立柱混凝土基础尺寸为300x300x600。
4.钢板网安装要求网面平整,无明显凸现象,框架与立柱应连接牢固;所用钢材需达到Q235钢的要求。立柱及框架镀锌钢管表面刷涂绿色防锈漆。
5.隔离栅框架标准单位长度为3m,两端不足处可适当调整标准段。