欢迎来到安平县秉德丝网制品有限公司网站!

潍坊寿光三峡寿光光伏发电项目场区围栏及大门生产厂家
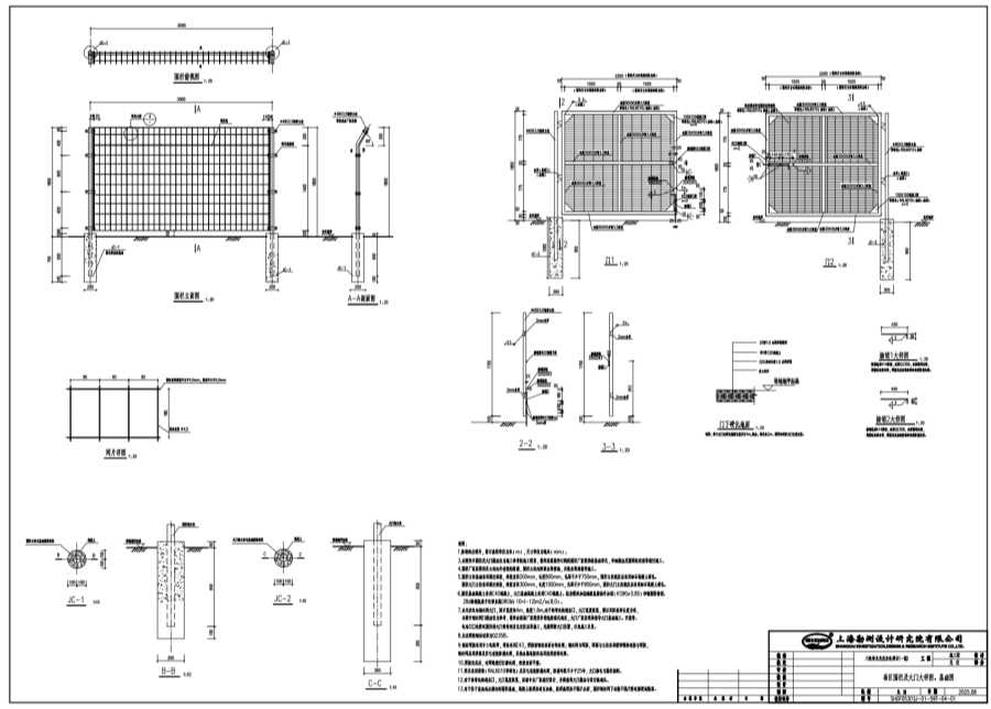
1.除特殊注明外,图示高程单位为米(m),尺寸单位为毫米( mm)。
2.本图所示围栏及大门做法仅为施工参考的施工图案,最终应根据所订购的围栏厂家提供的基础形式,详细做法及围网的花型等进行施工。
3.围栏厂家应提供其立柱内外有效的防腐,围栏立柱内防雨水等措施,并能在现场指导施工。
4.围栏立柱基础采用灌注短桩,短桩直径200mm,长度800mm,孔深不少于750mm,围栏立柱就位后采用细石混凝土灌孔。围栏大门立柱采用灌注短桩,短桩直径300mm,长度1000mm,孔深不少于50mm,围栏大门立就位后采用细石混凝灌孔。
5.围栏基础凝土采用C40混凝大门基础混凝采用C40混凝土。身需添加抗硫酸盐腐蚀外加剂( KS90>085)和钢船阻锈剂,28d龄期氯离子迁移系数DRCM( 10~(-12)m2/s<8.0)。
6.本光伏电站钢丝网大门,图示宽度约4m,高度1.8m,对于转处的进出口,大门宽度较宽,需以实际放样长度为准。本图中钢丝网门做法仅为参考,最终由根据厂家提供多种选择型式确定,大门厂家应现场指导大门基础施工、安装等。电站门口处附近围栏待大门资料到齐且定位后再施工,先期预留大门位置,以免施工反复。
7.未注明的钢材材质为Q235B。
8.钢材焊接采用手工电弧焊,焊条采用E43焊接前钢材表面处理·钢丝网与网框,网框与立采用镀锌螺检连接与焊接钢丝网采用浸塑及其它有效防腐处理,其他金属连接件采用热浸渡锌处理。
9.焊接完成后,对焊缝进行打磨处理,致使表面平整.
10.网片采用浸塑(RAL6010草绿色)及其它有效防腐处理,防腐年限不少于25年,大门颜色与围栏相同.
11.对于转弯处的进出口,大门宽度较宽,应请专业厂家进行设计,并提前将大门做法与设计院确认。
12.对于位于盐池或水塘内的围栏基础,混凝土顶应适当加高,桩顶高程应不低于水面,围栏钢丝网下边缘不低于附近塘埂或路面。